【方林集团·方林地产二期】方林徽派精工府邸,匠心开启美好生活

2019-07-14 13:09:04


“方 林 地 产 二 期 の 徽 府”

  a   n    g    L    i    n



青砖小瓦马头墙

回廊挂落花格窗



THE BLUE BRICK FLIES IN THE 

SMALL TILE HORSEHEAD WALLS

CORRIDOR HANGING OUT OF WINDOW



沈阳方林装饰




方林地产二期——徽府


 匠心筑城 华彩启幕 

FANGLIN LANDED ESTATE



 THE DOOR MODEL 户型




每一户 皆动心

EVERY HOUSEHOLD IS MOVING



A户型:三室两厅一厨一卫

沈阳方林装饰


A户型建筑面积约107平。全明户型设计,采光良好,南北通透。三室精巧布局,动静分离。南向客厅,视野宽广,餐厨相连,卫生间干湿分离方案的设计,兼具实用性、收纳性、美观性。



B户型:三室两厅一厨两卫

沈阳方林装饰


B户型建筑面积约115平。多向采光,南北通透。半敞开通透式厨房,主卧与主卫之间设有衣帽间,收纳空间丰富,阳光三室,主卧独立主卫,保证主人私密生活。



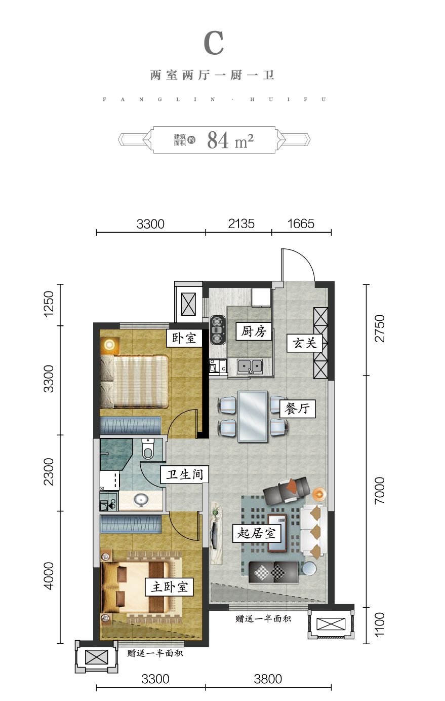
C户型:两室两厅一厨一卫

沈阳方林装饰


C户型建筑面积约84平是需求量比较高的一种经典户型。南北通透,户型正方实用。功能布局清晰完善。半敞开通透式厨房设计在视觉上增加通透感,空间感和流动性俱佳。



D户型:四室两厅一厨两卫

沈阳方林装饰


D户型建筑面积约139平。为园区最大的改善型户型,通透四室,开阔大气。大尺度客厅,满足多重生活需要。半敞开式厨房美观实用,豪华主卧,步入式衣帽间,整体上功能齐全,是大部分家庭的理想户型。



公寓户型

沈阳方林装饰


LOFT户型建筑面积约54平。两层空间,精巧布局,舒适体验,备受年轻人喜爱。首层轩敞起居厅,二层私属卧室,双卫设计,更加人性化。并增设煤气管线,有充分的预留空间便于收纳和装饰。



 THE ADVANTAGE 优势




五大优势 开启全面心动模式

FIVE BIG ADVANTAGE 

OPEN COMPREHENSIVE MODEL



//. 方林地产 · 匠心筑城



沈阳方林装饰



方林地产创立于2014年,是方林集团旗下房地产开发板块。方林集团为实现多元化产业布局,产品前端将精细化、品质化的建筑理念融入项目建设中。集团旗下十五大板块,服务15万家庭,品牌底蕴深厚。




//. 九年名校 · 大好前程 



沈阳方林装饰



方林徽府项目享有皇姑区顶级名校资源,双学区资源,板块内珠江五校和虹桥中学历年来均以素质教育和超高升学率誉满沈城。与名校为邻,打造全龄段优质教育体系,满足居住的梦想。



//. 城央贵脉 · 府纳万象



沈阳方林装饰



方林徽府项目地处皇姑区核心区域,位于一环核心位置,繁华和便捷共享。周边崇山路、昆山路、淮河街、怒江街、黄河大街等环城城市要道四通八达;三大商圈醇熟配套,多维交通便捷生活。



//. 徽派印象 · 精工府邸 



沈阳方林装饰



方林徽府将中国传统建筑精粹与现代生活的精雕细刻完美结合,既有文化内涵,又有观赏美感,在高楼林立的城市中心独树一帜。


园区整体采用人车分流设计,是城心稀缺的双层地库社区,为业主解决业主安全和停车问题,提高居住舒适度。 以礼序传承为神,以写意山水为韵,建筑徽派人文大宅。




//. 智能精装 · 品质保障 



沈阳方林装饰



方林徽府项目住宅整体全部精装交付,以方林装饰集团19年来在建筑装饰行业的高品质标准,全方位为项目加持,营造舒适的居住空间。


同时引入智能生活系统,以人为尺,深度挖掘生活需求,从智能、健康、空间和美感上升级,打造奢适生活体验。 精耕细作,打磨产品,全面提升居住舒适度。



 THE INHERITANCE 传承&情怀




一个宏伟的梦想

一句郑重的承诺

A MAGNIFICENT DREAM

A SOLEMN PROMISE



沈阳方林装饰▲方林地产二期——徽府



方林徽府把中国传统宅院中的门环作为创意元素,门环的狮头是螺狮,是龙的九子之一。把它装在大门上,将门口的不良之气拒之门外,在风水上是非常吉祥的象征。


在传统门环中加入变形的“徽”字, 其中的圆形元素,既代表着圆满之意,也对应着中国传统文化“外圆内方”的中庸之道。而门环四周遍布的菱形块,既代表这方林成立至今,脚踏实地,一步一个脚印稳扎稳打的行事作风,也代表着方林人积极进取、一往无前,永不止步的决心。



沈阳方林装饰

▲方林地产一期——方林家园



方林地产一路传承发展,受到了业内瞩目,这一切都源自于方林集团董事长 王水林先生最初创业的情怀,他深知漂泊在外的艰辛,他在创业之初就承诺,将来一定要让跟随他一路打拼的家乡人、方林人安居圆梦。


而这一切正在慢慢实现,十九年的深耕精进,王董将精湛的徽派装修工艺带到繁华的沈阳,为辽沈百姓创造更优质的家居生活,同时王董又在沈阳为追随他的兄弟姐妹建造属于自己的家园,让大家和谐生活,安居乐业,组成方林人自己的大家庭。



沈阳方林装饰沈阳方林装饰

▲方林地产一期方林家园竣工入住合影



 THE EREXPECTATION 敬请期待




GRAND OPENING


未来以来 值得期待

SINCE THE FUTURE

WORTH LOOKING FORWARD TO



沈阳方林装饰

沈阳方林装饰

沈阳方林装饰



方林集团正努力为居住者提供最优居住品质。在停车位、绿化、环境、智能安防等方面进行全面升级,为居住者提供一个优美舒适的居住园区。



沈阳方林装饰

沈阳方林装饰

沈阳方林装饰

▲方林徽府沙盘图



有了方林家园一期的成功经验,方林家园二期在每一个方面都进行了全面的优化升级,达到了目前商品房市场上同面积户型最优性价比,全面提升居住舒适度。



沈阳方林装饰

沈阳方林装饰

沈阳方林装饰

沈阳方林装饰

▲方林徽府营销中心内部实景



方林地产二期——徽府,以城市珍稀资源匠心铸造时代巨著,打造具有浓郁徽派建筑风格的现代建筑。全面展开,静待美好。




沈阳方林装饰


沈阳方林装饰



项目地址:沈阳市皇姑区昆山路与延河街交汇处

营销中心:沈阳市皇姑区华山路与淮河街交汇处

开发商:沈阳方林房地产开发有限公司

营销热线:024-886 33333






   






  ELEGANT | ART | LIFE  


方林 · 徽府

共同开启美好生活


/


评论区分享你心中的匠心品格

「 SHARE THE ORIGINALITY IN YOUR HEART 」



沈阳方林装饰

沈阳方林装饰