【方林样板间赏析】慢享时光里,你是一见钟情的心动
“ 我 们 都 应 该 知 道 怎 么 让 自 己 住 的 开 心 ”
F a n g L i n
对一切美好的事物怀有期待
能够让我们与之一直走下去
直到有一天
事物的灵魂将被诱发到洒满阳光的广阔之地
Looking forward to all the good things
Let's keep going with it
Until one day
The soul of things will be induced to
a vast land full of sunshine
案例赏析 | 房况概述
▽
时光沙漏,重拾记忆美好
/
方林集团设计精英出品 | 系列样板间作品展示
APPRECIATE DESIDN AND IMAGE
SFROM FANGLIN DECORATION
超越房屋定义 · BEYOND DEFINITION
△园区名称:中海盛京府
△建筑面积:650㎡
△整体风格:一层、二层、三层台式风格;负一层、负二层新中式风格
△设计理念:每一个让你热爱生活的细节,都是我们为之奋斗的意义
/
理想是一种温度,呵护美好
理想是一席美学,匠筑人生
理想是一份希冀,未来可期
Ideal is a kind of temperature, good care
Ideal is aesthetic, craftsmanship of life
Ideal is hope, the future is promising
负二层 | 与时光相逢
▽
时光来去,韶华无欺
/
方林集团设计精英出品 | 系列样板间作品展示
APPRECIATE DESIDN AND IMAGE
SFROM FANGLIN DECORATION
超越房屋定义 · BEYOND DEFINITION
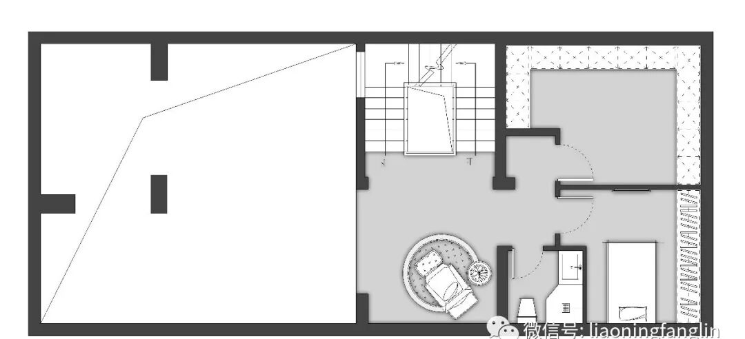
▲负二层平面布置图
设计理念:负二层功能以储藏、放置设备为主,所以高度较低,设计团队考虑到负二层的采光通风以及负二层与负一层的连接关系,在楼梯前方设置了开放休闲区。
『 负二层设计效果图 』
▲负二层设计效果图
将中式情韵以简雅静宁的格调呈现出来,让居者在木作的纹理、阳光的渗透、清茶的幽香中,品味生活的烟火气与安适感。
1918别墅设计团队致力于通过对生活的积累,将有温度的设计融入中式的文化理念,打造一个别致、舒适的居住空间。家居的装饰诉说平凡的日常,却又处处彰显精致和得体,让人第一眼看去就心生视觉上的欢愉。
『 负二层实景图 』
▲负二层实景图
负一层 | 把日子过成诗
▽
朝朝暮暮里你是唯一的心动
/
方林集团设计精英出品 | 系列样板间作品展示
APPRECIATE DESIDN AND IMAGE
SFROM FANGLIN DECORATION
超越房屋定义 · BEYOND DEFINITION
▲负一层平面布置图
设计理念:原始地下室高度为5.5米,将地下室高度一分为二,负二层功能以休闲会客为主,所以保留较高的高度。
把中心会客区与采光井下方的茶室高度抬高,与其他空间高度形成对比,形成阶梯式空间,突出主体。楼梯与会客厅墙面做镂空造型,既增加了采光与通透感,也与茶室形成画中画。
『 负一层设计效果图 』
▲负一层设计效果图
心的追逐,隐的随性。映在建筑和家的光影里。
阳光是这个世界上最普通,也最奢侈的装饰品。一处受到阳光祈福的家,所带来的远不止美的视觉感受,更创造一种充满希望与闲适的生活美学。一壶清茶,通透安静,为匆忙的都市生活抚平拉紧的琴弦。
『 负一层实景图 』
▲负一层实景图
一层 | 过风无暇的牵挂
▽
不知不觉的喜欢,都是真爱
/
方林集团设计精英出品 | 系列样板间作品展示
APPRECIATE DESIDN AND IMAGE
SFROM FANGLIN DECORATION
超越房屋定义 · BEYOND DEFINITION
▲一层平面布置图
设计理念:一层南侧为主入户,原有楼梯位置在进门对面,考虑到整体空间的通透感与连贯性,楼上楼下的功能与关系,所以将原有楼梯位置改到西侧。
南北形成敞开式大空间,考虑到整体风格,将客厅的台阶延伸到电视墙,形成L造型,与沙发相对应。楼梯对面设置一楼的品茶区,丰富了一层的会客功能,连接餐厅与客厅。
『 一层设计效果图 』
▲一层设计效果图
因历史原因,“台式风格”吸纳了不少日式风格,但是台式风格更加注重空间的简约和自然,没有纷繁复杂的装饰,仅用质朴的色彩加上线条感极强的设计手法,便营造出了简约而有质感的空间。
餐厅延续会客厅空间的基调,每一处细节的臻选,精致的灯带装饰,都以简单的形制礼遇生活之美。
一望见底的湖泊只能博得初见的惊艳,唯有大海博纳百川,才值得一次又一次的品味。厨房对一个家庭而言,是一处平凡而又隆重的场所。
『 一层实景图 』
▲一层实景图
二层 | 生活的从容与优雅
▽
漫屋芳华,幽静了岁月
/
方林集团设计精英出品 | 系列样板间作品展示
APPRECIATE DESIDN AND IMAGE
SFROM FANGLIN DECORATION
超越房屋定义 · BEYOND DEFINITION
▲二层平面布置图
设计理念:二层至三层为别墅居住区,二层设置三个卧室。南侧为两个主卧室,将原有大空间分割成三个空间,兼备居住、工作、储藏,在窗户一侧设置卡座飘窗,作为观景区。
考虑二层卧室的居住人员不定性,在北侧设置两个卧室,设置三个门口三道推拉门,关上不同的门,形成不同的功能空间,独立套房、双卧室、独立卧室与敞开休闲区三种空间的形式,小空间大变换。
『 二层设计效果图 』
▲二层设计效果图
以三进的方式将书房、卧室、主卫进行构设,使空间具备更好的秩序感与私密性。书房以简净的木色调对话,现代极简语汇与台式情韵在空间中相融相生,分外静雅。晨间的日光柔和,夜晚的月色明澈,一杯清茶,共待流年。
自然光弥足珍贵,倾洒于窗前、花下、和葡萄佳酿的烛火里。在卧室空间的设计中,设计团队都考虑到了自然阳光。当清晨初阳升起,无论在哪里,都可以感受到温暖的能量。
『 二层实景图 』
▲二层实景图
三层 | 向往的生活
▽
用品味容纳生活的理想
/
方林集团设计精英出品 | 系列样板间作品展示
APPRECIATE DESIDN AND IMAGE
SFROM FANGLIN DECORATION
超越房屋定义 · BEYOND DEFINITION
▲三层平面布置图
设计理念:三层整层为主人居住与活动空间,进门后形成南北动线,将居住与储藏、卫生间分开。居住空间设置了书房功能,在床头后放置书桌,作为床头背景,既保留了居住区的大开敞度,又增加了空间功能。卫生间的外侧为操作台,增加饮水、简餐等功能,丰富生活的便利性。
『 三层设计效果图 』
▲三层设计效果图
卧室的设计,着重于简与繁的平衡。过简则显清寂,过繁易生羁扰。延续主厅灰白色彩主调,卧室的肌理设计更为丰富。灯光的柔软、木质的亲和、以及阳光的明媚在此融为一体。
阳光透过疏离的窗纱洒入室内,泡上一杯咖啡斜倚在沙发或窗台上,翻开的书本在微风中轻轻摇动,也许,这才是生活的最好状态。
『 三层实景图 』
▲三层实景图
好的设计就是一气呵成
就是浑然一体
就是在你第一眼看到它时
就会坚信那就是家本来的样子
Good design is done at one go
It's all in one
It's when you first see it
You'll believe that's what you're like at home
▼ ELEGANT | ART | LIFE ▼
以时光之礼
报岁月以歌
评论区 分享你喜欢的风格
「 SHARE THE STYLE THAT YOU LIKE 」
